Mapa   Ficha
INTERESANTE LOCAL JUNTO EN BARCELONA JUNTO A PLAZA ESPAÑA
Barcelona (Sants-Montjuic) - REF. 2750

598 m2
alquiler: 12.000 €/mes
Descripción

Local único en Creu Coberta, junto a Plaza España


Presentamos un magnífico local comercial en una de las zonas más estratégicas y concurridas de Barcelona, en Calle Creu Coberta, junto a Plaza España. Una ubicación privilegiada dentro de un entorno comercial consolidado y con un altísimo paso peatonal.


El local sorprende desde el primer momento con una entrada majestuosa a doble altura de 6,10 metros y una fachada de 4,75 metros, perfecta para destacar tu marca.


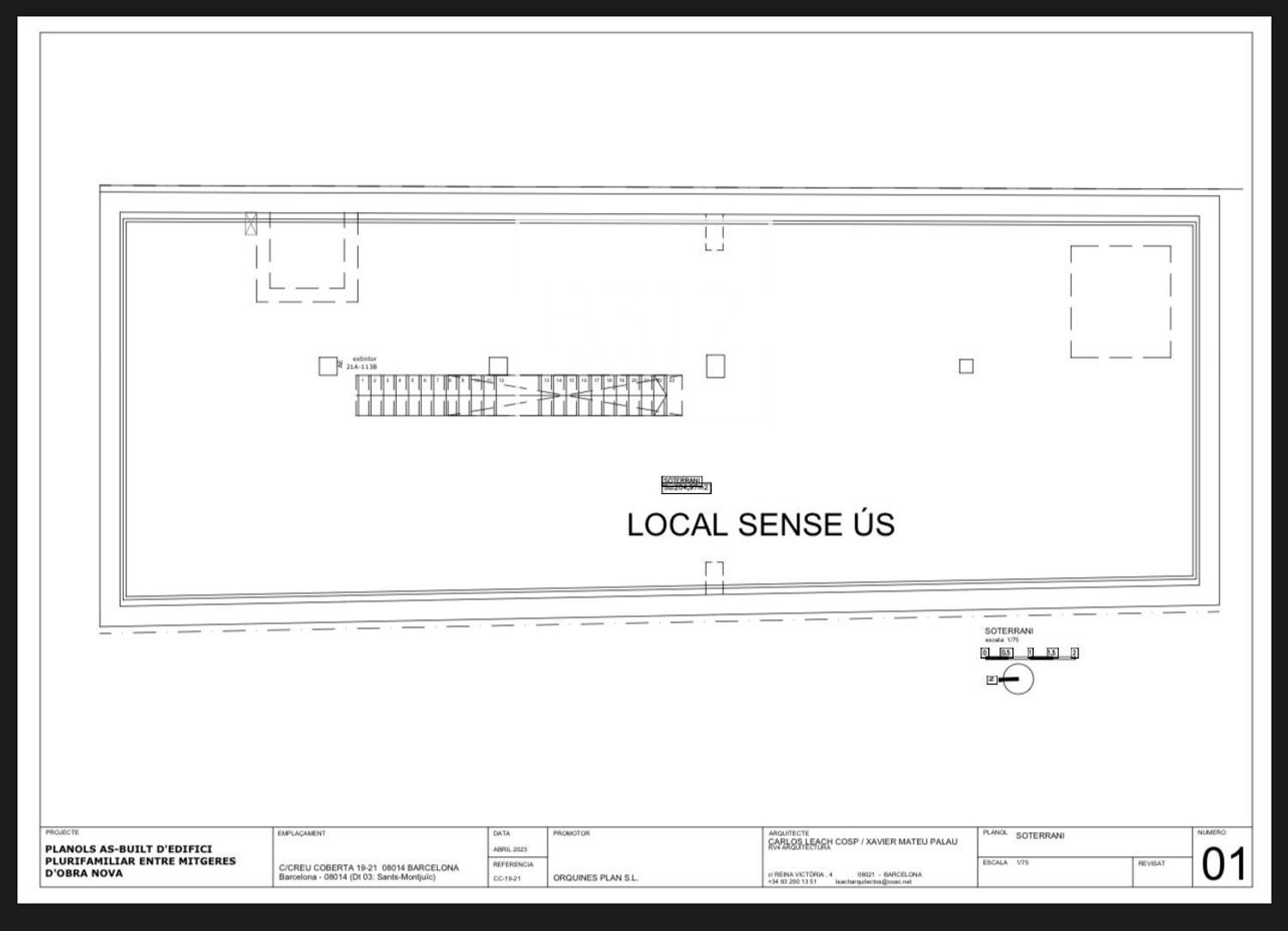
El local se distribuye en planta calle y planta sótano. El local tiene una planta rectangular, con un cambio de cota en la mitad (aprox a los 24 metros de profundidad) solucionado mediante rampa. Se encuentra en estado bruto, listo para ser adaptado al proyecto que desees implantar.



La planta calle se devide endos tramos, separando ambos el cambio de cota.

Primer tramo:

Longitud: 24 m

Anchura: 5,5 m hasta 9,10 m

Altura: entre 2,90 m y 3,05 m


Segundo tramo:

Longitud: 24 m

Anchura: de 7 m a 9,5 m

Altura: entre 3 m y 3,48 m


Sótano:

Acceso por escalera y espacio previsto para instalar ascensor

Superficie: 23 m x 8 m aprox.

Altura: 3,8 m


Ventajas adicionales:


Salida de humos


Posibilidad de licencia de restauración


Una oportunidad ideal para negocios de restauración, retail de gran formato o cualquier actividad que requiera visibilidad, amplitud y ubicación estratégica.


📞 Contáctanos hoy mismo para más información y para concertar una visita. ¡Haz que tu negocio despegue en una de las mejores zonas de Barcelona!



Características
Precio Alquiler 12.000 €/mes
Año de construcción 2023
Construidos 598 m2
Estado Necesita reforma total
Calificación Energética Exento
Ubicación
La dirección del inmueble es aproximada.
Escalas de eficiencia



Contáctanos

Si deseas más información sobre esta propiedad, por favor, rellena el formulario.

 Sí, he leído y/o acepto las Condiciones de uso y la Política de privacidad
Inmuebles similares:
 
10.000 €/mes
Ref. 2760  427 m2  3
Local Comercial en alquiler en Barcelona, con 427 m2 y con Escaparate.
 
10.000 €/mes
Ref. 2713  735 m2
LOCAL ESQUINERO EN UBICACIÓN PRIVILEGIADA – MÁXIMA VISIBILIDAD Y POTENCIAL