Mapa   Ficha
Fantástica oficina en Paseo de Gracia.
Barcelona (Eixample) - REF. 2753

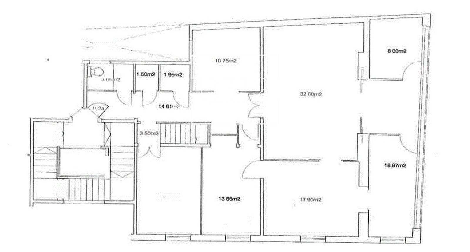
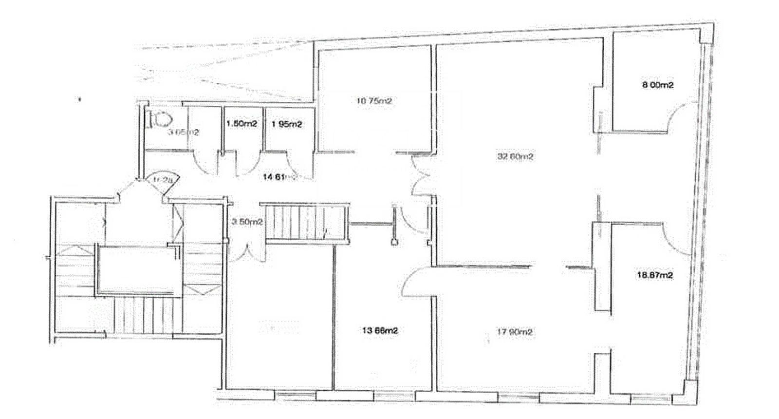
164 m2

7

2

2
alquiler: 3.433 €/mes
Descripción

Oficina con Encanto y Prestigio en Paseo de Gracia 🌟


Si buscas una oficina con carácter, luz natural y presencia corporativa, esta es tu oportunidad. Situada en uno de los mejores tramos de Paseo de Gracia, entre Gran Vía y Diputación, en un edificio de referencia exclusivo de oficinas, este espacio combina representatividad, funcionalidad y ubicación estratégica en pleno corazón de Barcelona.


✨ Características destacadas


📍 Ubicación premium: Paseo de Gracia, entre Gran Vía y Diputación — zona de negocios consolidada.

🏢 Edificio exclusivo de oficinas: elegante y con solo dos oficinas por planta.

🌞 Segunda planta esquinera: con abundante luz natural y galería al patio de manzana.

🖥️ Distribución ideal:


Gran sala central con techos altos y diseño representativo.


Varios despachos con luz natural y ventilación (de 8 m² a 19 m²).


☕ Office equipado y dos baños.

🔌 Suministros dados de alta — listo para entrar.

💶 Gastos de comunidad incluidos.

📊 IBI repercutido al arrendatario: 308 €/mes.


🚀 No dejes pasar esta oportunidad


Haz que tu empresa crezca en un espacio que inspira profesionalidad y confianza.

📞 Contáctanos hoy mismo para concertar una visita y descubrir todo el potencial de esta magnífica oficina en Paseo de Gracia.

Características
Precio Alquiler 3.433 €/mes
Construidos 164 m2
Despachos 7
Baños 2
Calefacción Gas
Altura/Planta 2
Estado En estado de uso
Ascensor
Aire acondicionado
Calificación Energética En trámite
Luz
Gas
Agua
Ubicación
La dirección del inmueble es aproximada.
Escalas de eficiencia



Tu agente
Herman J.
Contáctanos

Si deseas más información sobre esta propiedad, por favor, rellena el formulario.

 Sí, he leído y/o acepto las Condiciones de uso y la Política de privacidad
Inmuebles similares:
 
3.423 €/mes
Ref. 2752  198 m2  2

Oficina con Encanto y Prestigio en Paseo de Gracia 🌟


 
3.059 €/mes
Ref. 2736  211 m2  2
Oficina en alquiler en Barcelona, con 211 m2 y Divisiones.