Ficha
CALLE DE MEJÍA LEQUERICA
Barcelona (Les Corts) - REF. 2363

1.656 m2
venta: 1.600.000 €
Descripción

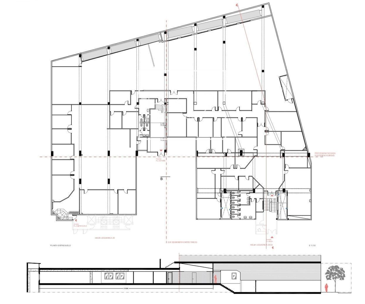
¡Excepcional oportunidad de adquirir una oficina en venta en una ubicación estratégica! Esta oficina en planta entresuelo se encuentra en una zona privilegiada, junto al recinto de la Maternitat y a pocos metros de Trav de Les Corts.

Con una combinación única de dos unidades registrales unificadas, esta oficina ofrece un espacio amplio y versátil para adaptarse a tus necesidades empresariales. Además, cuenta con acceso directo desde la portería del edificio, brindando comodidad y privacidad.

Esta oficina se presenta en un estado diáfano, lo que te permite diseñar y distribuir el espacio según tus preferencias y requerimientos. Con un total de 1.656 metros cuadrados construidos, tienes un lienzo en blanco para crear un entorno de trabajo inspirador y eficiente.

Además, esta propiedad ofrece un gran potencial para personalizarla según tus necesidades específicas, ya sea para establecer una oficina corporativa, un centro de coworking o cualquier otro tipo de negocio.

No pierdas la oportunidad de adquirir esta atractiva y profesional oficina en venta. ¡Contáctanos hoy mismo para obtener más información y programar una visita! Descubre cómo este espacio excepcional puede llevar tu negocio al siguiente nivel.

Características:
¦ 1.656 m²
¦ totalmente diáfana
¦ totalidad de metros en una única planta
¦ 2 núcleos de baños
¦ totalmente a reformar

Comunicaciones:
¦ Autobuses: 59, 70, 175, M12, V3, V5
¦ Metro L3 Maria Cristina
¦ TRAM: T1, T2, T3 Maria Cristina

Características
Precio Venta 1.600.000 €
Precio/m² 966 €/m²
Construidos 1.656 m2
Estado Necesita reforma total
Ascensor
Calificación Energética En trámite
Escalas de eficiencia



Tu agente
Herman J.
Contáctanos

Si deseas más información sobre esta propiedad, por favor, rellena el formulario.

 Sí, he leído y/o acepto las Condiciones de uso y la Política de privacidad
Inmuebles similares:
 
1.650.000 €
Ref. 2779  345 m2  2
Oficina en venta en Barcelona y con 345 m2.